Vessel Sues West Hartford, Receives Second Denial for Proposed Development
Audio By Carbonatix

Front view of 29 Highland Street as proposed in application by Vessel Technologies on Nov. 4, 2025. Courtesy of Vessel Technologies (we-ha.com file image)
Vessel Technologies filed legal action against the Town of West Hartford, appealing the denial of a development application, and at the same time resubmitted a site plan application that on Feb. 27, 2026 was denied. [Updated, 5 p.m.]
By Ronni Newton
Vessel Technologies had 15 days to resubmit – following West Hartford Town Planner Todd Dumais’ denial of a site plan application to construct two buildings with a total of 120 residential units at 29 Highland Street – and on Jan. 28, 2026, the company not only resubmitted a site plan application to the town, but also filed an appeal of the initial denial decision with Connecticut Superior Court.
In a letter dated Jan. 28, 2026, accompanying the resubmission of the site plan application, Vessel Technologies Executive Vice President Josh Levy states that the “Site Plan Application qualifies as an ‘Affordable Housing Development’ under the Statute, and (2) denial of the Site Plan Application is not necessary to protect substantial public interests in health, safety or other matters that outweigh the need for affordable housing.”
On Friday, Feb. 27, Dumais denied the resubmission in a letter both emailed and sent via certified mail to Levy and Jason A. Klein, a partner with Stamford-based Carmody, Torrance, Sandak, Hennessey LLP, the attorney representing Vessel.
On Saturday afternoon, in a statement provided to We-Ha.com, Levy said, “Two years ago, West Hartford invited us to revitalize this site into desperately needed housing but then changed its tune. Since then, the Town has denied our applications on grounds that are almost as creative as they are unfounded.”
Levy indicated that Vessel plans to pursue building in West Hartford. “They are putting politics above planning, and that’s exactly why the state’s affordable housing law was enacted. We’re not concerned and look forward to presenting our case in court and having a ribbon cutting in 2027,” he added.
Dumais stated several grounds for denial of the resubmission including:
- “As explained in the denial of the Original Site Plan Application, that application did not qualify as an affordable housing application under section 8-30g because it failed to propose habitable dwelling units. Specifically, the plans did not include essential components of habitable dwelling units by failing to include bathroom and kitchen facilities.”
The resubmission includes documents intended to address the reasons the town denied the initial application submitted on Nov. 4, 2025, including noting that the new application “proposal consists of ‘dwelling units’ as that term is commonly and legally understood.”

Conceptual dwelling unit plans. Screenshot of document prepared by architect Milton Gregory Grew, submitted to the Town of West Hartford
However, because the town claimed that the original submission dated Nov. 4, 2025 was not a qualified 8-30g submission, Dumais states that “no statutory right to resubmit arises. An applicant may not retroactively confer section 8-30g status on a prior non-qualifying application by adding qualifying elements in a resubmitted filing after denial.”
Dumais also states that even if the application was considered a qualified 8-30g submission, because Vessel has taken legal action, he no longer has the jurisdiction to review the resubmission:
- “To the extent the application qualifies for section 8-30g, subsection (h) provides a clear procedural choice following denial: an applicant may either pursue judicial review or submit a proposed modification in lieu of appeal, in which case the appeal period is stayed. The statute does not contemplate concurrent litigation and resubmission. Having elected to invoke the jurisdiction of the Superior Court, the Applicant may not simultaneously seek to reopen the administrative review process. Accordingly, this office declines to accept or consider the Resubmitted Site Plan Application while the appeal remains pending.”
And, Dumais added in his denial letter, even if the application qualified under 8-30g and the appeal to the court was not filed, the resubmission would still have been denied because:
- “The denial of the Original Site Plan Application is incorporated by reference, including the findings that (1) the site plan does not comply with the requirements of the Town’s zoning code, and nothing in the Resubmitted Site Plan Application modifies that finding, thereby continuing to render it ineligible for site plan approval under section 177-42B of the Town Code, and (2) to the extent the Application qualifies for section 8-30g, substantial public interests in health, safety or other matters – many of which remain unaddressed in the resubmission – clearly outweigh the need for affordable housing.”
Some of the issues that have still not been addressed are significant, and related to fire safety, Dumais said. “These issues are neither isolated nor technical and mirror concerns that have been raised repeatedly in connection with Vessel’s projects in multiple Connecticut municipalities, where state building and fire officials have questioned the very ‘constructability’ of proposed designs or their ability to meet fire safety requirements. With regard to the present Application, the Applicant has chosen to proceed with land use submissions without documentation or resolution to these issues,” Dumais wrote in his denial letter.
While there were conversations between Vessel and the Town of West Hartford regarding fire safety issues after the submission of the November 2025 application, Dumais stated that Vessel did not provide the town with any guidance they had received from state officials or otherwise address the fire safety concerns as part of their application, “beyond general assurances of future code compliance. Instead, the Town’s Fire Chief ultimately obtained relevant information from the state Department of Administrative Services through a Freedom of Information request. Significantly, DAS made clear it may be willing to consider certain modifications for projects under construction that it will not allow for future projects.”
In addition, Dumais cited correspondence dated Feb. 4, 2026 from State Fire Marshal Lauri Volkert and State Building Inspector Omarys Vasquez, that was sent proactively to West Hartford’s fire marshal as well as fire marshals in other municipalities with pending Vessel projects, citing “information that was either not provided or not demonstrated to be in compliance with applicable codes within the scope of that review, such as the floor assembly test data.”
As part of that 35-page email, Volkert stated that “it is important for code officials to verify that fire-resistance tests accurately represent the materials, dimensions, spans, and loading conditions shown in the approved drawings and installed in the field. Consistency between tested assemblies and constructed systems is essential to confirm compliance with minimum life safety requirements and expected performance during a fire.”
Dumais also notes that the Feb. 4 correspondence from DAS – that had not previously been shared with the town by Vessel – also includes a letter Volkert and Vasquez sent to Vessel founder and CEO Neil Rubler, dated Jan. 14, 2026, “noting ‘inconsistencies and conflicting information in the project documentation’ for projects in other municipalities, concluding that ‘[o]verall, the documentation lacks consistency, and several required details and specifications are either incomplete or contradictory.’”
In his Jan. 28, 2026 letter accompanying the resubmission, Levy stated, “Because this application is governed by the Statute, denial is only permissible if the Town establishes that the proposal presents a substantial risk to public health or safety, that such risk clearly outweighs the need for affordable housing, and that the risk cannot be addressed through reasonable changes to the plan or reasonable conditions of approval.”
Dumais said the DAS findings are relevant to health and safety, “because they call into question the reliability and completeness of the site plan materials used to evaluate whether the design can achieve code compliance. The matter is also relevant given the prefabricated design.”
West Hartford remains committed to increasing its stock of affordable housing, and Dumais citd the Town Council’s unanimous approval last month of Madsen Acres, a 54-unit, 100% affordable condominium complex on Newington Road.
“As noted in the denial of the Original Site Plan Application, West Hartford has shown a demonstrated commitment to growing its affordable housing stock, and the site remains a prime location for redevelopment, including for multi-family affordable housing,” Dumais stated in his denial. “This office remains concerned that approval of the Application would not meaningfully advance, and may in fact hinder, the State and Town’s affordable housing goals.”
West Hartford Corporation Counsel Dallas Dodge shared the following statement with We-Ha.com regarding the Feb. 27, 2026 denial: “West Hartford remains firmly committed to expanding affordable housing, as demonstrated by the Town’s approval of numerous such developments in recent years. That commitment, however, does not lessen the Town’s responsibility to protect the health and safety of future residents, nor does it resolve serious threshold questions about whether this proposal qualifies as an affordable housing development under applicable law. The Town Planner’s decision was based on substantial, well-documented concerns identified by professional staff and independent fire safety experts. The Town remains committed to ensuring those issues are fully addressed and that any application claiming affordable housing status meets the minimum standards and statutory qualifications required under state law.”
Dodge said the town has no further comment at this time.

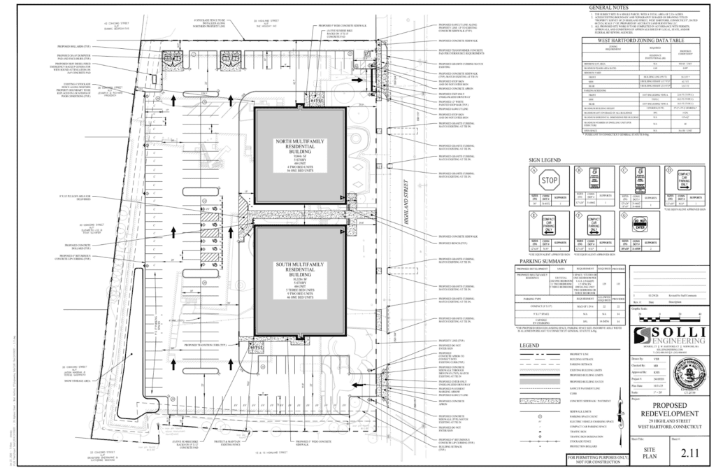
Updated site plan for proposed Vessel Technologies development at 29 Highland Street, provided by Solli Engineering and included with Jan. 28, 2026 resubmission to Town of West Hartford. Screenshot
Legal action
Concurrent to its resubmission of the site plan application for development of 29 Highland Street, Vessel Technologies Inc. and Vessel RE Holdings Inc. filed a complaint against the Town of West Hartford and Town Planner Todd Dumais, appealing the denial of the Nov. 4, 2025 site plan application. The complaint is dated Jan. 28, 2026, but was not posted online on the state’s judicial website until Feb. 17, 2026.
In part, Vessel requested an appeal on the grounds that West Hartford’s “denial was not supported by sufficient evidence in the record and failed to satisfy the burden under Connecticut General Statutes § 8-30g(g) including that the “assumptions concerning code compliance improperly require Plaintiffs to provide construction level drawings as a condition precedent to a site plan approval put a significant financial burden on the construction of affordable housing, in direct contradiction of the remedial purpose of§ 8-30g” and that “Defendant did not identify a substantial public interest in health or safety at risk with approval, or a conditional approval.”
There are no scheduled events pertaining to lawsuit, which has been transferred to the land use litigation docket, according to online court records.
Next steps
In a statement provided to We-Ha.com on Feb. 20, Levy stated, “We filed an appeal to preserve our rights while simultaneously resubmitting our application, addressing each item in the Town’s rejection letter. We are optimistic this can be resolved without litigation, so that we can provide desperately needed housing to his community.”
As noted above, Levy stated Saturday afternoon that Vessel plans to pursue the litigation against the town.
Editor’s Note: This article was updated at 5 p.m. on Feb. 28 with a statement from Vessel Technologies Executive Vice President Levy.
Like what you see here? Click here to subscribe to We-Ha’s newsletter so you’ll always be in the know about what’s happening in West Hartford! Click the blue button below to become a supporter of We-Ha.com and our efforts to continue producing quality journalism.

