Affordable Ownership: West Hartford to Consider Plans for 8-30g Condominium Development
Audio By Carbonatix

Rendering of proposed Madsen Acres condominium development. Courtesy of Honeycomb Real Estate Partners
The proposal is for 54 condominium units on Newington Road and Brook Street in West Hartford on what is currently vacant land.
By Ronni Newton
A proposal by Honeycomb Real Estate Partners to develop what is currently vacant land in West Hartford into affordable housing is in the early stages of review, with the first step being an application for a wetlands permit.
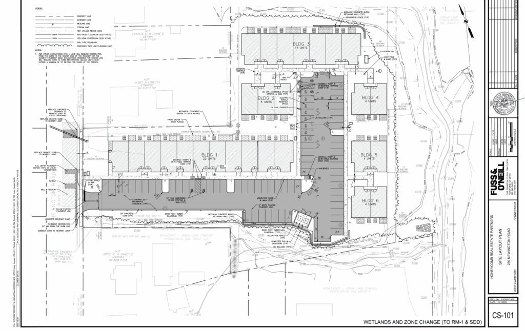
The plan proposes six townhouse-style residential buildings of two stories each, with a total of 54 residential units – 38 one-bedroom and 16 two-bedroom homes. The development, to be called Madsen Acres, would be constructed on now-vacant property at 230 Newington Road and 60 Brook Street.

Rendering of proposed Madsen Acres condominium development. Courtesy of Honeycomb Real Estate Partners
While the application, which will include rezoning for multifamily residential use and creation of a Special Development District, is being submitted under Connecticut’s 8-30g statute for affordable housing, unlike other proposals that have been or are being considered by West Hartford under that law, however, these units would be condominiums owned by their residents.
Honeycomb Real Estate Partners recently completed The Camelot, a highly-touted 100% affordable residential development of 44 apartments on the site of the former West Hartford Inn and a vacant restaurant. Lewis Brown, principal of Honeycomb and a West Hartford resident, noted at the ribbon cutting how critical the need is for affordable housing in West Hartford and statewide.
“We are super interested not only in providing the opportunity for affordable rentals, but also in places like West Hartford – where starter homes have become increasingly unaffordable and unattainable – for ownership,” Brown told We-Ha.com. The new development is planned as 100% affordable, with a mix of condominium units available for purchase by those earning 60% of the Area Median Income (AMI) or less, and the remainder for those with family income of 80% AMI or less.
Based on current affordability requirements and limits – 2025 HUD Income Limits and Department of Housing Program Guidelines – the purchase price of a one-bedroom condominium unit would be roughly $150,000 for those with a family income of 60% AMI and roughly $180,000 at the 80% AMI level. While the requirements are subject to change, at current levels two-bedroom units would be sold for roughly $220,000 and $250,000 at the 60% AMI and 80% AMI level respectively. According to Honeycomb, eight of the one-bedroom and four of the two-bedroom units will be for those at the 60% AMI level.
The rules in the DOH “For Sale Affordable Homeownership Program,” according to Honeycomb, indicate current income levels to qualify for purchase as:
- 1 Person, 60% AMI – $53,220
- 1 Person, 80% AMI – $70,960
- 2 Person, 60% AMI – $60,780
- 2 Person, 80% AMI – $81,040

Schematic for Madsen Acres. Town of West Hartford website
Building a capital stack for the financing of affordable rental housing is complicated, and constructing an affordable – deed-restricted – ownership development also requires many puzzle pieces to be put together. Brown said he is not aware of a project like this being previously proposed in West Hartford, at least not on the scale of 100% affordable ownership.
In order to make the project viable, Brown said that with the income restriction in place, the state will provide a subsidy to bridge the difference between the cost of developing each unit and what the new homeowner can afford. There are also state programs to assist prospective owners with financing, including downpayment assistance.
He and his partners – including Steve Caprio of Honeycomb – have already had discussions with the state and financing partners.
“There is a lot of support for the idea,” Brown said. He expects ownership of the units to have broad appeal, including to young adults looking to purchase a first home, as well as for seniors on fixed or more limited incomes who may be looking to downsize but remain property owners in West Hartford.

Curb cut to 230 Newington Road. Photo credit: Ronni Newton
The location – adjacent to one of the driveways leading to the Newington Road plaza that includes Stop & Shop and other businesses – provides excellent accessibility for shopping and other needs, walkable access to Elmwood, and is on bus lines.
Access to the development is proposed from Newington Road, through an existing curb cut. Both parcels, originally part of the Holo-Krome manufacturing property, were purchased on May 13, 2025 from H-K Connecticut Holding Co. through LLCs associated with the development partners. The 0.63-acre property with the address of 230 Newington Road is zoned R-6 residential and was purchased for $86,000, while 60 Brook Street, which is a total of 13.78 acres in the IG (industrial) zone was purchased for $2,414,000. Only about three acres of the Brook Street parcel will be used for Madsen Acres, Brown said, and will be separated from the remainder of the property that will be used for commercial and industrial storage.
The narrative accompanying the wetlands application states that the “proposed site layout arranges the buildings around the perimeter of the site with the parking lot internal to the buildings. A continuous sidewalk wraps the perimeter of the parking areas and connects to all building entrances.” The plan calls for 71 parking spaces.

230 Newington Road and 60 Brook Street parcel viewed from parking lot leading to Stop & Shop Plaza at 176 Newington Road. Photo credit: Ronni Newton
At its Monday, Dec. 1 meeting, West Hartford’s Town Plan & Zoning Commission (TPZ), in its capacity as the town’s Inland Wetland and Watercourse Agency (IWWA), received the initial application for the project, which is not expected to impact wetlands directly but has portions of land that are within the 150-foot upland review area. A hearing on the wetlands application has been scheduled for Jan. 5, 2026.
An application for a Special Development District, which will include rezoning the property for multifamily use, is expected to be submitted soon, according to Brown.
Caprio will attend a meeting of the Elmwood Business Association on Friday, Dec. 5, and will provide more details about the proposed project. That meeting will be held at GastroPark, 637 New Britain Avenue, beginning at 8:30 a.m.
In addition, a public information session will be held at the Senior Center at the Elmwood Community Center on Wednesday, Dec. 17, beginning at 6:30 p.m.

Town of West Hartford zoning map indicating 230 Newington Road and 60 Brook Street parcels
Like what you see here? Click here to subscribe to We-Ha’s newsletter so you’ll always be in the know about what’s happening in West Hartford! Click the blue button below to become a supporter of We-Ha.com and our efforts to continue producing quality journalism.


Town council is determined to make the Town of West Hartford into North Stamford City.
what an excellent proposal
Agree with William this will be an excellent use of infill space to add some residential units in town to help working families. I remember when the Goodwin across the street was being built and some folks were clutching their pearls about it, but now 10 years later it’s blended into town well.
David can you elaborate on how this development or what secret plans the town council has to make West Hartford into “North Stamford City.” West Hartford currently has almost 4,000 less residents now than 55 years ago in 1970, so it’s not like more people are living in town than ever before. If you compare the current population estimate to the 2000 Census, it’s barely grown from just over 63,589 to 64,293. At that rate of population growth it’ll take about 125 years (year 2150) before West Hartford reaches 68,000 people again. Just some data to help ease your fears maybe.